当前位置: 首页 > 知识产权交易 > 专利转让 >

待交易一种可调节水头高度的混凝土透水系数测量装置

专利号:CN201922319513.X 已授权

申请日:2023-02-02发布日期:2023-02-02

立即收藏 立即询价 转让价格:询价

专利摘要

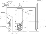
本实用新型公开了一种可调节水头高度的混凝土透水系数测量装置,包括控制台、透水筒、水位计、溢流水槽、电磁流量计、量筒、升降台和供水储水槽,在溢流水槽的外部两侧分别设置量筒和供水储水槽,在溢流水槽的中央放置升降台,在透水筒的上端侧壁设置有第一溢流管,在溢流水槽的上端侧壁设置有第二溢流管,第二溢流管的入口端固定在溢流水槽的上端侧壁上,第二溢流管的出口端向下倾斜延伸至量筒上方,第一溢流管的入口端固定在透水筒的上端侧壁,第一溢流管的出口端向下倾延伸至供水储水槽的槽口上方,在透水筒的筒内上端设置水位计。本实用新型可方便进行透水系数测量,在制试验中可调节水头高度,进而研究水头高度对混凝土透水系数的影响。

交易流程

  • 平台资深顾问将根据买家的需求,提供一对一服务,协助买家挑选到合适的专利。

  • 待买家确认无误后,根据顾问指导进行下单,并签订协议与合同,买家需要支付50%交易款给平台。

  • 平台将负责办理官方变更手续,向国知局提交转让材料。

  • 约10个工作日左右,待买家确认收到专利《变更手续合格通知书》后,向平台支付剩余交易款。

  • 转让成功后,平台会将专利证书原件、专利登记簿副本原件邮寄给买家,同时把交易尾款支付给卖家,保障双方交易顺利。

过户资料

主体资格 转让方提供 受让方提供 平台提供 转让完成,可获得
自然人 身份证复印件,专利证书原件; 身份证复印件
有效个体营业执照
转让申请书
代理委托书
转让协议书
发明人变更声明
专利证书
手续合格通知书
专利登记簿副本
公司 有效的企业营业执照副本复印件,专利证书原件 有效的企业营业执照副本复印件;企业组织机构代码证
平台专属代理事务所将对委托交易全程监督,确保所有交易合同及相关文件合法有效。

发布求购信息