当前位置: 首页 > 知识产权交易 > 专利转让 >

待交易一种立柱围转焊系统

专利号:CN202121223909.5 已授权

申请日:2022-11-29发布日期:2022-11-29

立即收藏 立即询价 转让价格:询价

专利摘要

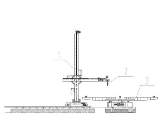
本实用新型公开了,属于自动焊接技术领域,包括焊接操作机、焊接装置和水平回转台,水平回转台设置在焊接操作机的侧边,焊接装置设置在焊接操作机上,焊接操作机包括提升机构、立柱和横梁,提升机构设置在立柱的顶部,横梁可滑动设置在立柱上,焊接装置设置在横梁的一端。采用水平回转焊接操作机焊接碳钢、不锈钢工件角对接平角焊、仰角焊,环缝横焊等焊接工作,焊接自动化程度高、操作方便、安全;采用焊接操作机和水平回转台的结构形式,将工件立放在水平回转台上,通过水平回转台带动工件做的水平旋转运动,实现筒体工件的平角焊、仰角焊,环缝横焊等焊接。保证焊缝内部和外部质量,减轻工人劳动强度,提高生产效率。

交易流程

  • 平台资深顾问将根据买家的需求,提供一对一服务,协助买家挑选到合适的专利。

  • 待买家确认无误后,根据顾问指导进行下单,并签订协议与合同,买家需要支付50%交易款给平台。

  • 平台将负责办理官方变更手续,向国知局提交转让材料。

  • 约10个工作日左右,待买家确认收到专利《变更手续合格通知书》后,向平台支付剩余交易款。

  • 转让成功后,平台会将专利证书原件、专利登记簿副本原件邮寄给买家,同时把交易尾款支付给卖家,保障双方交易顺利。

过户资料

主体资格 转让方提供 受让方提供 平台提供 转让完成,可获得
自然人 身份证复印件,专利证书原件; 身份证复印件
有效个体营业执照
转让申请书
代理委托书
转让协议书
发明人变更声明
专利证书
手续合格通知书
专利登记簿副本
公司 有效的企业营业执照副本复印件,专利证书原件 有效的企业营业执照副本复印件;企业组织机构代码证
平台专属代理事务所将对委托交易全程监督,确保所有交易合同及相关文件合法有效。

发布求购信息