当前位置: 首页 > 知识产权交易 > 专利转让 >

待交易一种兼具止水帷幕作用的双排桩支护结构

专利号:CN202121053150.0 已授权

申请日:2022-11-28发布日期:2022-11-28

立即收藏 立即询价 转让价格:询价

专利摘要

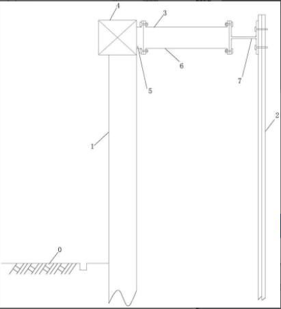
本实用新型公开了,包括前排桩和后排桩,所述前排桩和后排桩平行设置;在前排桩和后排桩之间还设有水平设置的压力传导结构;所述压力传导结构包括冠梁、多个嵌入梁、多个连系梁以及钢冠梁。本实用新型设置了双排桩支护结构和压力传导结构,前后排桩通过连系梁的作用形成空间组合的超静定结构,后排桩所受土压力可由连系梁及桩间土传递给前排桩,且在连系梁作用下面对基坑多种复杂的外荷载作用,结构本身的内力分布可以自动调整,有效控制了基坑变形。后排拉森钢板桩不仅起到支挡作用,还具备良好的止水帷幕效果,在主体结构施工完成后可回收再利用,节约了材料和成本。

交易流程

  • 平台资深顾问将根据买家的需求,提供一对一服务,协助买家挑选到合适的专利。

  • 待买家确认无误后,根据顾问指导进行下单,并签订协议与合同,买家需要支付50%交易款给平台。

  • 平台将负责办理官方变更手续,向国知局提交转让材料。

  • 约10个工作日左右,待买家确认收到专利《变更手续合格通知书》后,向平台支付剩余交易款。

  • 转让成功后,平台会将专利证书原件、专利登记簿副本原件邮寄给买家,同时把交易尾款支付给卖家,保障双方交易顺利。

过户资料

主体资格 转让方提供 受让方提供 平台提供 转让完成,可获得
自然人 身份证复印件,专利证书原件; 身份证复印件
有效个体营业执照
转让申请书
代理委托书
转让协议书
发明人变更声明
专利证书
手续合格通知书
专利登记簿副本
公司 有效的企业营业执照副本复印件,专利证书原件 有效的企业营业执照副本复印件;企业组织机构代码证
平台专属代理事务所将对委托交易全程监督,确保所有交易合同及相关文件合法有效。

发布求购信息